Gewerbegebiet und Kircherl
Wird ein Wahrzeichen in Viechtach zugebaut?
Artikel vorlesen

Nicole Ernst
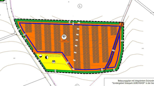
Wird der Blick auf das Antonikircherl durch die Erweiterung des Gewerbegebiets Oberschlatzendorf Nord beeinträchtigt? Das Thema wurde bei der Stadtratssitzung angesprochen.
"Schade" findet es Stadträtin Eva Bauernfeind (Zukunft Viechtach), dass man dem Antonikircherl, "einem Wahrzeichen Viechtachs", so nahe rückt.
Jetzt weiterlesen mit Plus-Zugang:
- alle Artikel in voller Länge und mit allen Inhalten
- deutlich weniger Werbung auf der Seite
- Sie unterstützen Journalismus in Ihrer Region
Bereits Plus- oder E-Paper-Abonnent? Hier
anmelden
Als Abonnent unserer Zeitung haben Sie automatisch gratis Plus-Zugang. Hier
freischalten












